Mieszkanie na sprzedaż Kraków, Stare Miasto, Krowoderska

7 pokoi
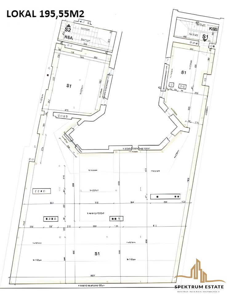
195.55 m²
8 000,00 zł/m2
4 piętro
SPEK-MS-6056

1 564 400 zł

Mieszkanie na sprzedaż
Nowa oferta

Szczegóły oferty

Symbol oferty SPEK-MS-6056
Powierzchnia 195,55 m²
Powierzchnia użytkowa [m2] 278,05 m²
Liczba pokoi 7
Rodzaj budynku kamienica
Technologia budowlana beton, cegła
Standard
Piętro 4
Liczba pięter w budynku 4
Stan lokalu do adaptacji
Mies. czynsz admin. 1 PLN
Okna stare drewniane
Instalacje WODNA, GAZOWA
Balkon Barierka
Rok budowy 1914
Parking strzeżony (odległość w metrach) 350 m
Widok panorama miasta
Gaz jest
Woda brak
Dojazd ASFALTOWA
Otoczenie centrum miasta
Ogrzewanie inne
Odległość do komunikacji publicznej [m] 350 m
Odl. do sklepu [m] 350 m
Odl. do szkoły [m] 350 m
Odl. do przedszkola [m] 450 m
Usytuowanie dwustronne
Pomieszczenia
Mariusz Raczkowski

Mariusz Raczkowski

Specjalista Ds.nieruchomości

Napisz wiadomość 72 Ofert

Opis nieruchomości

STRYCH DO ADAPTACJI  W SAMYM CENTRUM PRZY PLANTACH !!!

Oferuję Państwu  lokal mieszkalny o powierzchni  po podłodze: 278,05m²  na ul. Krowoderska,
Lokal usytuowany jest na czwartym  piętrze w 4 -piętrowej kamienicy z 1914 roku .
Powierzchnia strychu :
     - po podłodze: 278,05m²
    - użytkowa: 195,55m²
    - mierzona powyżej 2,20m: 155,65m²
Wejście  z jednej klatki schodowej  z możliwością wykonania dodatkowego wejścia  z klatki frontowej jest wyodrębnione miejsce na windę zewnętrzną .
Istnieje możliwość zakupu drugiego lokalu (strychu) o powierzchni 48,52 m², znajdującego się obok w cenie  388 160 PLN


LOKALIZACJA
Największą zaletą tego miejsca jest lokalizacja
5 min spacerkiem do Rynku , 8 min do Galerii Krakowskiej i dworca PKP, PKS

Rozbudowana infrastruktura : w sąsiedztwie Stary Kleparz , liczne sklepy , piekarnie , muzea oraz banki, nawet basen YMCA jest 150 m od mieszkania oraz kultowe kino studyjne Agrafka.

Tereny zielone : po drugiej stronie ulicy Planty.

Doskonała komunikacja miejska liczne linie tramwajowe oraz autobusowe


CENA: 1564 400 PLN

Kontakt w sprawie oferty : Mariusz 792-484-802
Spektrum Estate Wioletta Grubarek

30-074 Kraków , ul. Kazimierza Wielkiego 58/3

Finansuj zakup nieruchomości z naszymi specjalistami.
Pośrednik odpowiedzialny zawodowo za wykonanie umowy pośrednictwa - Nr Licencji 5989
Przed prezentacją obowiązuje podpisanie standardowej umowy pośrednictwa.

Oferty zamieszczone na naszych stronach internetowych nie stanowią oferty w rozumieniu kodeksu cywilnego

Wszelkie dane dotyczące nieruchomości uzyskano na podstawie oświadczeń właściciela

Podobne oferty

Mieszkanie na sprzedaż

Kraków, Stare Miasto

3 pokoje 123 m2 15 961,07 zł/m2

Mieszkanie na sprzedaż

Kraków, Stare Miasto

3 pokoje 75 m2 18 666,67 zł/m2

Mieszkanie na sprzedaż

Kraków, Stare Miasto

3 pokoje 62 m2 24 032,26 zł/m2

Mieszkanie na sprzedaż

Kraków, Stare Miasto

2 pokoje 51 m2 31 176,47 zł/m2

Specjalista Ds.nieruchomości

Proszę wprowadzić poprawne imię i nazwisko
Proszę wprowadzić poprawny numer telefonu
Proszę wprowadzić poprawny adres e-mail
Proszę zaznaczyć wymagane zgody
Rozwiąż równanie:
22 5
Niepoprawny wynik