Mieszkanie na sprzedaż Kraków, Bieżanów-Prokocim, Złocień, Henryka i Karola Czeczów

3 pokoje
63.00 m²
15 047,62 zł/m2
1 piętro
SPEK-MS-6381

948 000 zł

Mieszkanie na sprzedaż
Nowa oferta

Szczegóły oferty

Symbol oferty SPEK-MS-6381
Powierzchnia 63,00 m²
Liczba pokoi 3
Rodzaj budynku blok
Technologia budowlana tradycyjna
Standard
Opłaty w czynszu administracja
Opłaty wg liczników prąd, gaz
Piętro 1
Liczba pięter w budynku 3
Garaż garaż pod budynkiem
Stan lokalu wysoki standard
Mies. czynsz admin. 700 PLN
Okna PCV
Instalacje nowe
Balkon jest
Liczba balkonów 1
Rok budowy 2023
Gaz brak
Woda ciepła - miejska
Ogrzewanie C.O. miejskie
Winda tak
Liczba wind 1
Usytuowanie dwustronne
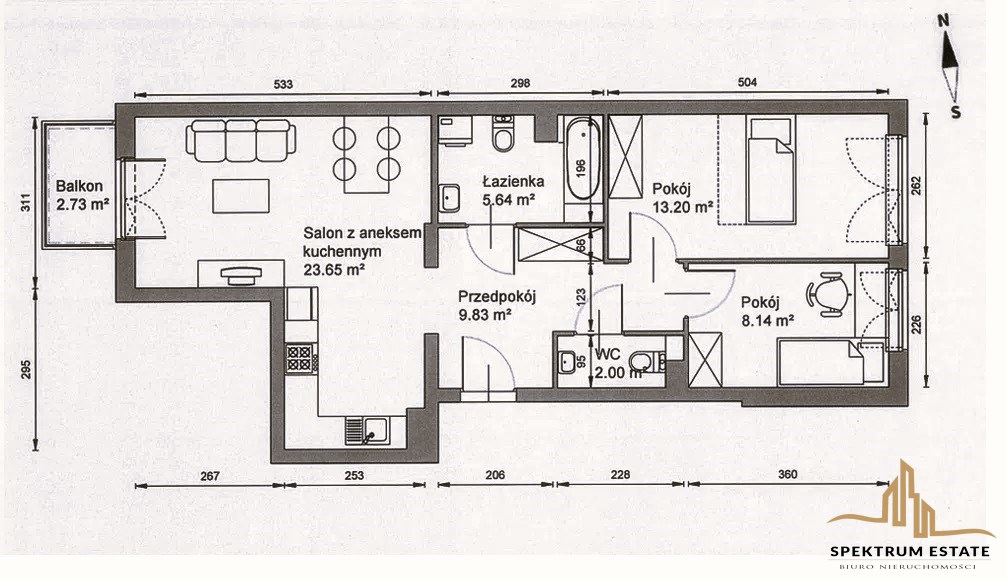
Pomieszczenia
Małgorzata Kawula

Małgorzata Kawula

Doradca Ds.nieruchomości

Napisz wiadomość 124 Ofert

Opis nieruchomości

POLECAMY !!! MIESZKANIE 3POKOJOWE DO WEJŚCIA! ZŁOCIEŃ!

Mam przyjemność przedstawić mieszkanie znajdujące się na ul. Henryka i Karola Czeczów -Złocień. 
Nieruchomość położona na
1 piętrze w 3 piętrowym budynku z 2023r.

Metraż nieruchomości
62,62m2 na które składa się:
-
Salon z Aneksem Kuchennym 23,65m2
-
Sypialnia I 13,2m2

-Sypialnia II 8,14m2

-
Łazienka 5,64m2

-Pomieszczenie Gospodarcze (doprowadzona instalacja wod-kan) 2m2

-
Przedpokój z dużą szafą w zabudowie 9,83m2
* do mieszkania przynależy balkon
2,73m2

Miejsce Postojowe w hali garażowej dodatkowo płatne 50.000zł

Ciepła woda oraz ogrzewanie miejskie.

Czynsz 700zł


Mieszkanie bardzo ciepłe
i jasne, dwustronna ekspozycja (wschodnia i zachodnia) wykończone w wysokim standardzie, klimatyzacja, zabudowa kuchenna i szafy wykonane przez stolarza, gotowe do zamieszkania od zaraz.

 

Świetna lokalizacja - spacerem kilka minut do przystanku MPK z którego można dotrzeć w każdą część Krakowa. W pobliżu liczna infrastruktura handlowo-usługowa - Żabka. Rossman, Pepco, Biedronka, apteka, cukiernia, fryzjer, kwiaciarnia, salon kosmetyczny, bankomat, nowoczesna szkoła podstawowa, biblioteka, przedszkola.

Zapraszam na prezentacje!
 

Przed prezentacją obowiązuje podpisanie standardowej umowy pośrednictwa.
 

Spektrum Estate Wioletta Grubarek

ul. Kazimierza Wielkiego 58/3 30-082 Kraków
Pośrednik odpowiedzialny zawodowo za wykonanie umowy pośrednictwa
Nr Licencji 5989.

Oferuje skuteczną i bezpłatną pomoc w uzyskaniu kredytu.
Przedstawione powyżej informacje nie stanowią oferty handlowej w rozumieniu przepisów prawa, lecz stanowią zaproszenie do zapoznania się nią. Wszelkie dane dotyczące nieruchomości uzyskano na podstawie oświadczeń właściciela.

Lokalizacja nieruchomości

Podobne oferty

Mieszkanie na sprzedaż

Kraków, Bieżanów-Prokocim

4 pokoje 72 m2 16 783,22 zł/m2

Mieszkanie na sprzedaż

Kraków, Bieżanów-Prokocim

3 pokoje 59 m2 11 774,74 zł/m2

Mieszkanie na sprzedaż

Kraków, Bieżanów-Prokocim

2 pokoje 46 m2 16 043,48 zł/m2

Mieszkanie na sprzedaż

Kraków, Bieżanów-Prokocim

2 pokoje 38 m2 18 940,99 zł/m2

Doradca Ds.nieruchomości

Proszę wprowadzić poprawne imię i nazwisko
Proszę wprowadzić poprawny numer telefonu
Proszę wprowadzić poprawny adres e-mail
Proszę zaznaczyć wymagane zgody
Rozwiąż równanie:
13 6
Niepoprawny wynik