Mieszkanie na sprzedaż Kraków, Prądnik Biały, Na Mostkach

3 pokoje
75.52 m²
12 976,69 zł/m2
parter
SPEK-MS-5944

980 000 zł

Mieszkanie na sprzedaż

Szczegóły oferty

Symbol oferty SPEK-MS-5944
Powierzchnia 75,52 m²
Powierzchnia użytkowa [m2] 75,52 m²
Liczba pokoi 3
Rodzaj budynku budynek wolnostojący
Technologia budowlana -
Standard
Piętro parter
Liczba pięter w budynku 2
Stan lokalu wysoki standard
Okna PCV
Instalacje dobre
Rok budowy 2025
Widok na inne budynki
Gaz brak
Woda tak
Dojazd asfalt
Otoczenie zabudowa jednorodzinna
Ogrzewanie podłogowe
Odległość do komunikacji publicznej [m] 700 m
Odl. do sklepu [m] 300 m
Odl. do szkoły [m] 300 m
Odl. do przedszkola [m] 300 m
Usytuowanie dwustronne
Pomieszczenia
Typ kuchni aneks
Rodzaj kuchni aneks kuchenny
Typ łazienki razem z wc
Małgorzata Kawula

Małgorzata Kawula

Doradca Ds.nieruchomości

Napisz wiadomość 128 Ofert

Opis nieruchomości

MIESZKANIE W WYSOKIM STANDARDZIE, Z OGRODEM
 

LOKALIZACJA:
Nieruchomość zlokalizowana na nowoczesnej inwestycji os. Dvorskie Residence (oddanie sierpień 2025), dzielnica Prądnik Biały. Cała okolica bardzo cicha posiada doskonale rozwiniętą infrastrukturę: sklepy, szkoły, place zabaw, ośrodki kultury oraz inne punkty usługowe. Dodatkowo w niedalekiej odległości Trasa Wolbromska - szybki dojazd do centrum Krakowa oraz okolicznych większych sklepów dyskontowych.

W pobliżu tereny zielone, przy rzece Sudół

Przystanki komunikacji miejskiej (tramwaj, autobus) zapewniają połączenie z każdą częścią Krakowa. Dojazd do miasta - niecałe 20 minut.

NIERUCHOMOŚĆ:
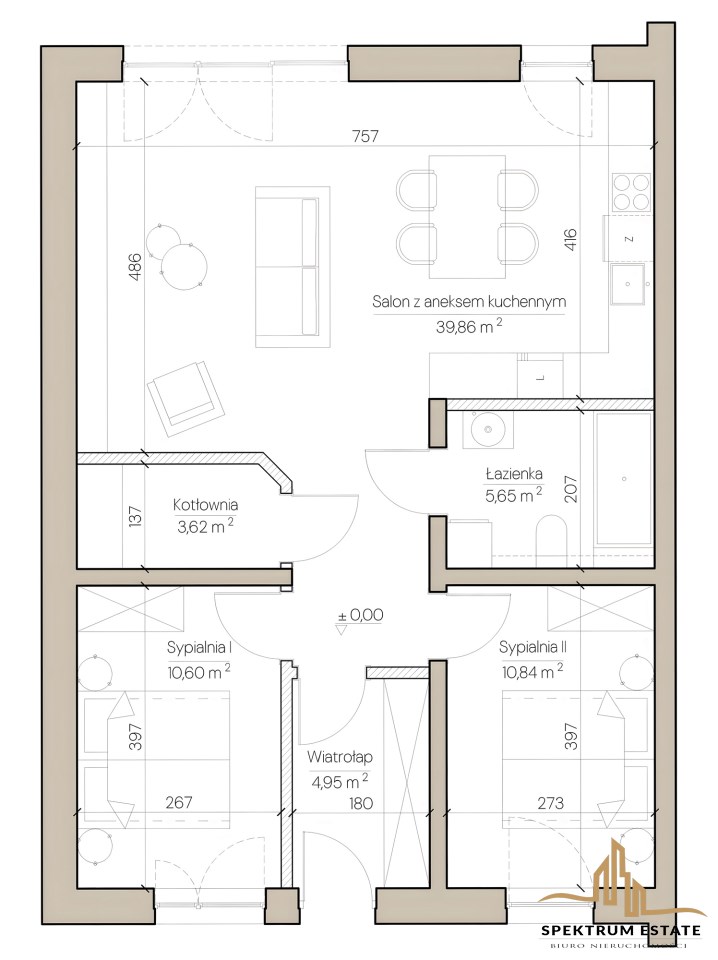
Nieruchomość o powierzchni 75,52 m², na parterze 2-piętrowego budynku, rozkłada się następująco:
Salon z aneksem kuchennym: 39,86 m²
Pokój 1: 10.60 m²
Pokój 2: 10.84 m²
Łazienka: 5,65 m²
Przedpokój: 4.95 m²
Kotłownia: 3,62 m²
Ogród (ogrodzony): 105,71 m²  

Mieszkanie wyposażone w nowoczesne technologię i rozwiązania ekologiczne!

Dodatkowo, w cenie:
Miejsca postojowe: 2 +

Dodatkowe informacje: 
-ogrzewanie podłogowe na całości mieszkania  - sterowane indywidualnie
-pompy ciepła DAIKIN 4 kW Rekuperacja wentylacja mechaniczna z odzyskiem ciepła Instalacja TV/SAT i internetowa
-instalacja - fotowoltaika
-instalacja - ładowarka do samochodów elektrycznych
-okna trzyszybowe z dodatkową izolacją akustyczną i termiczną

(ZDJĘCIA Z MAJA 2025)

KONTAKT: 536-850-730

Pośrednik odpowiedzialny zawodowo za wykonanie umowy pośrednictwa Wioletta Grubarek - Spektrum Estate 30-074 Kraków , ul. Kazimierza Wielkiego 58/3 Nr Licencji 5989.

Przed prezentacją obowiązuje podpisanie standardowej umowy pośrednictwa.

Oferty zamieszczone na naszych stronach internetowych nie stanowią oferty w rozumieniu kodeksu cywilnego.

ZAPRASZAMY

Lokalizacja nieruchomości

Podobne oferty

Mieszkanie na sprzedaż

Kraków, Prądnik Biały

2 pokoje 42 m2 17 807,89 zł/m2
Oferta specjalna

Mieszkanie na sprzedaż

Kraków, Prądnik Biały

3 pokoje 68 m2 17 573,53 zł/m2
Oferta specjalna

Mieszkanie na sprzedaż

Kraków, Prądnik Biały

3 pokoje 48 m2 18 366,92 zł/m2
Nowa oferta

Mieszkanie na sprzedaż

Kraków, Prądnik Biały

3 pokoje 72 m2 17 685,56 zł/m2
Nowa oferta

Doradca Ds.nieruchomości

Proszę wprowadzić poprawne imię i nazwisko
Proszę wprowadzić poprawny numer telefonu
Proszę wprowadzić poprawny adres e-mail
Proszę zaznaczyć wymagane zgody
Rozwiąż równanie:
10 6
Niepoprawny wynik